Buscador Inmuebles
Edificio Corporativo Passatge Tassó / Diputació
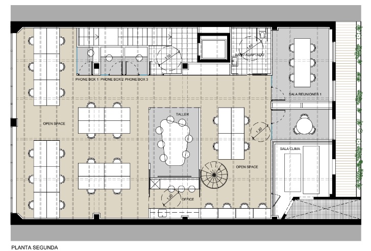
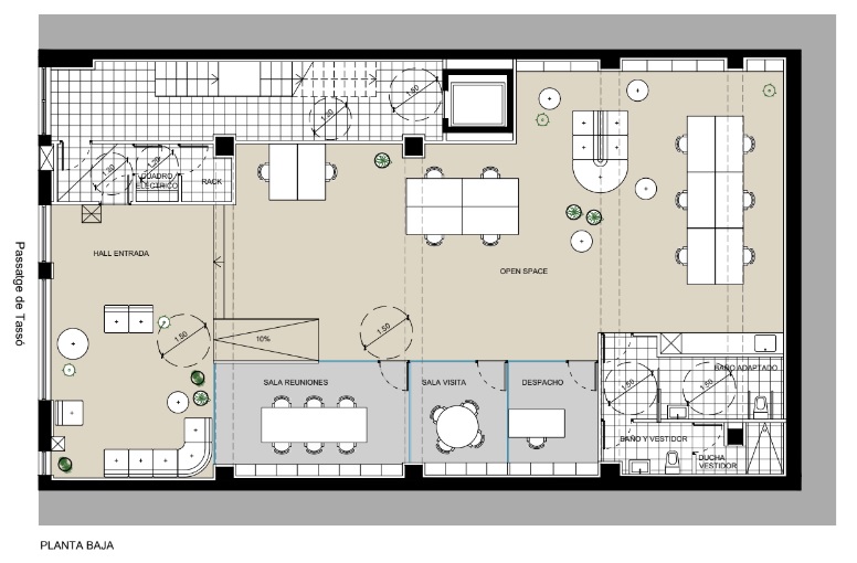
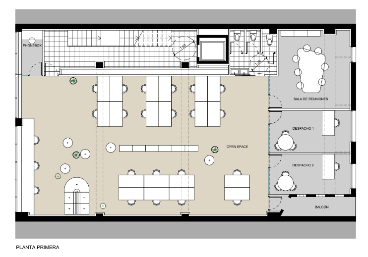
Planta Baja - 788,00 m2
ref: E-4695
ref: E-4695
- Edificio de oficinas
- Excelente imagen corporativa
- Aire acondicionado frío-calor
- Proyecto de rehabilitación completo
- Buena ubicación
- Bien comunicado
- Certificado energético B
- Propuesta gratuita de plano de implantación
- Altura con posibilidad de altillo




